Instalaciones – Asintec https://www.asintec.info Asintec Estudio de Ingeniería Tue, 19 Jun 2018 22:17:14 +0000 es-ES hourly 1 https://wordpress.org/?v=4.9.3 Legalización PCI comercial https://www.asintec.info/2013/03/05/legalizacion-pci-comercial-2/

Tue, 05 Mar 2013 22:54:12 +0000 http://tudeclaracionresponsable.com/?p=658 Buy Soma Overnight Supermercado Simply Market en Madrid. Legalización de instalación PCI, alarma y detección de incendios automática. Empresa instaladora: Project Onder. Nuestro cliente nos contrató para legalizar las instalaciones de PCI, con alarma y detección de incendios automática. Legalizamos la instalación con el visto bueno de Industria realizando los planos as built y generamos los documentos necesarios

https://www.indicold.com/indicold_detroj/ La entrada Legalización PCI comercial se publicó primero en Asintec.

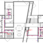
]]> Supermercado Simply Market en Madrid.

Legalización de instalación PCI, alarma y detección de incendios automática. Empresa instaladora: Project Onder.

Nuestro cliente nos contrató para legalizar las instalaciones de PCI, con alarma y detección de incendios automática.

Legalizamos la instalación con el visto bueno de Industria realizando los planos as built y generamos los documentos necesarios para la entrega final de las instalaciones.

Purchase Tramadol Without Prescription También realizamos la inspección para obtención del certificado EICI con la OCA.

https://nswellness.ca/pregnancy-health/ Nos encargamos de todos los trámites para entregar a nuestro cliente la instalación totalmente legalizada.

https://digitalfilms.cat/contacto/  

https://www.campingatlantide.com/fete-nationale/ La entrada Legalización PCI comercial se publicó primero en Asintec.

]]>
Legalización PCI hospital Fuenlabrada https://www.asintec.info/2013/03/05/legalizacion-pci-hospital-fuenlabrada/

Tue, 05 Mar 2013 22:49:35 +0000 http://tudeclaracionresponsable.com/?p=654 Hospital de Fuenlabrada. Legalización e instalaciones PCI. Empresa instaladora: Avances S.L. Nuestro cliente nos contrató para legalizar las instalaciones de pci, mediante red de agua contra incendios y extintores portátiles. Legalizamos la instalación con el visto bueno de Industria realizando los planos as built y generamos los documentos necesarios para la entrega final de las

La entrada Legalización PCI hospital Fuenlabrada se publicó primero en Asintec.

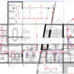
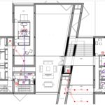
]]> Hospital de Fuenlabrada.

Legalización e instalaciones PCI. Empresa instaladora: Avances S.L.

pci hospital fuenlabrada img1

Nuestro cliente nos contrató para legalizar las instalaciones de pci, mediante red de agua contra incendios y extintores portátiles.

Legalizamos la instalación con el visto bueno de Industria realizando los planos as built y generamos los documentos necesarios para la entrega final de las instalaciones:

  •  Libro de la instalación
  •  Homologación de los materiales
  •  Certificados de garantía e instrucciones de mantenimiento y uso
  •  También realizamos la inspección para obtención del certificado EICI con la OCA.

Nos encargamos de todos los trámites para entregar a nuestro cliente la instalación totalmente legalizada.

 

La entrada Legalización PCI hospital Fuenlabrada se publicó primero en Asintec.

]]>
Fontanería chalet https://www.asintec.info/2013/03/05/fontaneria-chalet/ Tue, 05 Mar 2013 22:43:56 +0000 http://tudeclaracionresponsable.com/?p=645 Vivienda unifamiliar. Legalización de fontanería y saneamiento de chalet de alto nivel. Empresa instaladora: Avances S.L. Nuestro cliente nos contrató para legalizar las instalaciones de fontanería y saneamiento en un Chalet de alto nivel. Legalizamos la instalación con el visto bueno de Industria realizando los planos as built y generamos los documentos necesarios para la

La entrada Fontanería chalet se publicó primero en Asintec.

]]>
Vivienda unifamiliar.

Legalización de fontanería y saneamiento de chalet de alto nivel. Empresa instaladora: Avances S.L.

Nuestro cliente nos contrató para legalizar las instalaciones de fontanería y saneamiento en un Chalet de alto nivel.

Legalizamos la instalación con el visto bueno de Industria realizando los planos as built y generamos los documentos necesarios para la entrega final de las instalaciones:

  • Libro de la instalación
  • Homologación de los materiales
  • Certificados de garantía e instrucciones de mantenimiento y uso
  • Resúmenes técnicos de la Instalaciones de suministro de agua (Boletín de agua).

La entrada Fontanería chalet se publicó primero en Asintec.

]]>
Legalización calefacción Leganes https://www.asintec.info/2013/03/05/legalizacion-calefaccion-leganes/ Tue, 05 Mar 2013 22:37:10 +0000 http://tudeclaracionresponsable.com/?p=640 Edificio de 124 viviendas en Leganes. Legalización de instalación de calefacción. Empresa instaladora: Avances S.L. Nuestro cliente nos contrató para legalizar las instalaciones de calefacción en un edificio de 124 viviendas. Legalizamos la instalación con el visto bueno de Industria realizando los planos as built y generamos los documentos necesarios para la entrega final de

La entrada Legalización calefacción Leganes se publicó primero en Asintec.

]]>
Edificio de 124 viviendas en Leganes.

Legalización de instalación de calefacción. Empresa instaladora: Avances S.L.

Nuestro cliente nos contrató para legalizar las instalaciones de calefacción en un edificio de 124 viviendas.

Legalizamos la instalación con el visto bueno de Industria realizando los planos as built y generamos los documentos necesarios para la entrega final de las instalaciones:

  • Libro de la instalación.
  • Homologación de los materiales.
  • Certificados de garantía e instrucciones de mantenimiento y uso.

 

La entrada Legalización calefacción Leganes se publicó primero en Asintec.

]]>
Legalización fontanería Colmenar Viejo https://www.asintec.info/2013/03/05/legalizacion-fontaneria-colmenar-viejo/ Tue, 05 Mar 2013 22:30:52 +0000 http://tudeclaracionresponsable.com/?p=630 Urbanización de 106 viviendas en Colmenar Viejo. Legalización de fontanería y saneamiento. Empresa instaladora Avances S.L. Nuestro cliente nos contrató para legalizar las instalaciones de fontanería, y saneamiento en una urbanización de 40 más 66 viviendas. Legalizamos la instalación con el visto bueno de Industria realizando los planos as built y generamos los documentos necesarios

La entrada Legalización fontanería Colmenar Viejo se publicó primero en Asintec.

]]>
Urbanización de 106 viviendas en Colmenar Viejo.

Legalización de fontanería y saneamiento. Empresa instaladora Avances S.L.

Nuestro cliente nos contrató para legalizar las instalaciones de fontanería, y saneamiento en una urbanización de 40 más 66 viviendas.

Legalizamos la instalación con el visto bueno de Industria realizando los planos as built y generamos los documentos necesarios para la entrega final de las instalaciones:

  • Libro de la instalación.
  • Homologación de los materiales.
  • Certificados de garantía e instrucciones de mantenimiento y uso.
  • Resúmenes técnicos de la Instalaciones de suministro de agua (Boletines de agua) uno por acometida.

 

La entrada Legalización fontanería Colmenar Viejo se publicó primero en Asintec.

]]>
Legalización calefacción Móstoles https://www.asintec.info/2013/03/05/legalizacion-calefaccion-mostoles/ Tue, 05 Mar 2013 22:23:07 +0000 http://tudeclaracionresponsable.com/?p=621 Edificio de 35 + 35 viviendas en Móstoles. Legalización de instalación de calefacción. Empresa instaladora: Avances S.L. Nuestro cliente nos contrató para legalizar las instalaciones de fontanería, saneamiento y calefacción de una urbanización de 35 más 35 viviendas en Móstoles. Legalizamos la instalación con el visto bueno de Industria realizando los planos as built y

La entrada Legalización calefacción Móstoles se publicó primero en Asintec.

]]>
Edificio de 35 + 35 viviendas en Móstoles.

Legalización de instalación de calefacción. Empresa instaladora: Avances S.L.

Nuestro cliente nos contrató para legalizar las instalaciones de fontanería, saneamiento y calefacción de una urbanización de 35 más 35 viviendas en Móstoles.

Legalizamos la instalación con el visto bueno de Industria realizando los planos as built y generamos los documentos necesarios para la entrega final de las instalaciones:

  • Libro de la instalación.
  • Homologación de los materiales.
  • Certificados de garantía e instrucciones de mantenimiento y uso.

La entrada Legalización calefacción Móstoles se publicó primero en Asintec.

]]>
Legalización fontanería Navalcarnero https://www.asintec.info/2013/03/05/legalizacion-fontaneria-navalcarnero/ Tue, 05 Mar 2013 22:16:10 +0000 http://tudeclaracionresponsable.com/?p=616 Edificio de 52 viviendas en Navalcarnero Legalización de instalaciones de fontanería. Empresa instaladora: Avances SL. Nuestro cliente nos contrató para legalizar las instalaciones de fontanería, saneamiento en un edificio de 52 viviendas. Legalizamos la instalación con el visto bueno de Industria realizando los planos as built y generamos los documentos necesarios para la entrega final

La entrada Legalización fontanería Navalcarnero se publicó primero en Asintec.

]]>
Edificio de 52 viviendas en Navalcarnero

Legalización de instalaciones de fontanería. Empresa instaladora: Avances SL.

Nuestro cliente nos contrató para legalizar las instalaciones de fontanería, saneamiento en un edificio de 52 viviendas.

Legalizamos la instalación con el visto bueno de Industria realizando los planos as built y generamos los documentos necesarios para la entrega final de las instalaciones:

  • Libro de la instalación
  • Homologación de los materiales
  • Certificados de garantía e instrucciones de mantenimiento y uso
  • Resumen técnico de la instalación (Boletín de agua) para cada una de las acometidas que tenía el edificio.

 

La entrada Legalización fontanería Navalcarnero se publicó primero en Asintec.

]]>
Legalización instalaciones Valdemoro https://www.asintec.info/2013/02/27/legalizacion-instalaciones-valdemoro/ Wed, 27 Feb 2013 21:56:54 +0000 http://tudeclaracionresponsable.com/?p=591 Edificio de 234 viviendas en Valdemoro. Legalización de instalación de fontanería y calefacción. Empresa instaladora Avances S.L. Nuestro cliente nos contrató para legalizar las instalaciones de fontanería, saneamiento y calefacción de un edificio de 234 viviendas. Legalizamos la instalación con el visto bueno de Industria realizando los planos as built y generamos los documentos necesarios

La entrada Legalización instalaciones Valdemoro se publicó primero en Asintec.

]]>
Edificio de 234 viviendas en Valdemoro.

Legalización de instalación de fontanería y calefacción. Empresa instaladora Avances S.L.

Nuestro cliente nos contrató para legalizar las instalaciones de fontanería, saneamiento y calefacción de un edificio de 234 viviendas.

Legalizamos la instalación con el visto bueno de Industria realizando los planos as built y generamos los documentos necesarios para la entrega final de las instalaciones:

  • Libro de la instalación.
  • Homologación de los materiales.
  • Certificados de garantía e instrucciones de mantenimiento y uso.

 

La entrada Legalización instalaciones Valdemoro se publicó primero en Asintec.

]]>
Calefacción viviendas Mostoles https://www.asintec.info/2013/02/27/calefaccion-viviendas-mostoles/ Wed, 27 Feb 2013 21:48:53 +0000 http://tudeclaracionresponsable.com/?p=588 35 viviendas en Móstoles. Legalización de instalación de calefacción.  

La entrada Calefacción viviendas Mostoles se publicó primero en Asintec.

]]>
35 viviendas en Móstoles.

Legalización de instalación de calefacción.

 

legalizacion viviendas mostoles

La entrada Calefacción viviendas Mostoles se publicó primero en Asintec.

]]>
Legalización instalaciones Ajalvir https://www.asintec.info/2013/02/27/legalizacion-instalaciones-nave-ajalvi/ Wed, 27 Feb 2013 21:39:56 +0000 http://tudeclaracionresponsable.com/?p=583 Nave industrial en Ajalvir. Legalización de instalaciones de fontanería y saneamiento. Nuestro cliente nos contrató para legalizar la instalación de fontanería y saneamiento en una nave industrial. Legalizamos la instalación con el visto bueno de Industria realizando los planos as built y generamos los documentos necesarios para la entrega final de las instalaciones: Libro de

La entrada Legalización instalaciones Ajalvir se publicó primero en Asintec.

]]>
Nave industrial en Ajalvir.

Legalización de instalaciones de fontanería y saneamiento.

legalizacion nava ajalvir img1

Nuestro cliente nos contrató para legalizar la instalación de fontanería y saneamiento en una nave industrial.

Legalizamos la instalación con el visto bueno de Industria realizando los planos as built y generamos los documentos necesarios para la entrega final de las instalaciones:

  • Libro de la instalación.
  • Homologación de los materiales.
  • Certificados de garantía e instrucciones de mantenimiento y uso.

 

La entrada Legalización instalaciones Ajalvir se publicó primero en Asintec.

]]>